For Sale
Hablethorpe Street, Bilborough, Nottingham Hablethorpe Street, Bilborough, Nottingham

Hablethorpe Street, Bilborough, Nottingham

2 bedroom House for sale

Guide Price £200,000

  • 2 bedrooms
  • 2 bathrooms
  • 1 reception

Key Features

  • Modern and versatile three storey end townhouse
  • Two bedrooms (ground floor bedroom two currently being used as a lounge)
  • Entrance hall with tiled flooring and storage cupboard
  • Ground floor shower room/Wc with white suite, tiled floor and mains-fed shower
  • First floor dining kitchen/reception space, kitchen with integrated oven, hob extractor, fridge and freezer
  • Second floor principal bedroom/Wc with built-in sliding, mirrored doors and en-suite bathroom/Wc with mains-fed shower
  • Gas central heating, UPVC double glazing
  • Allocated parking space with EV charging point
  • Situated away from the road in an end of terraced plot with surrounding communal gardens

Description

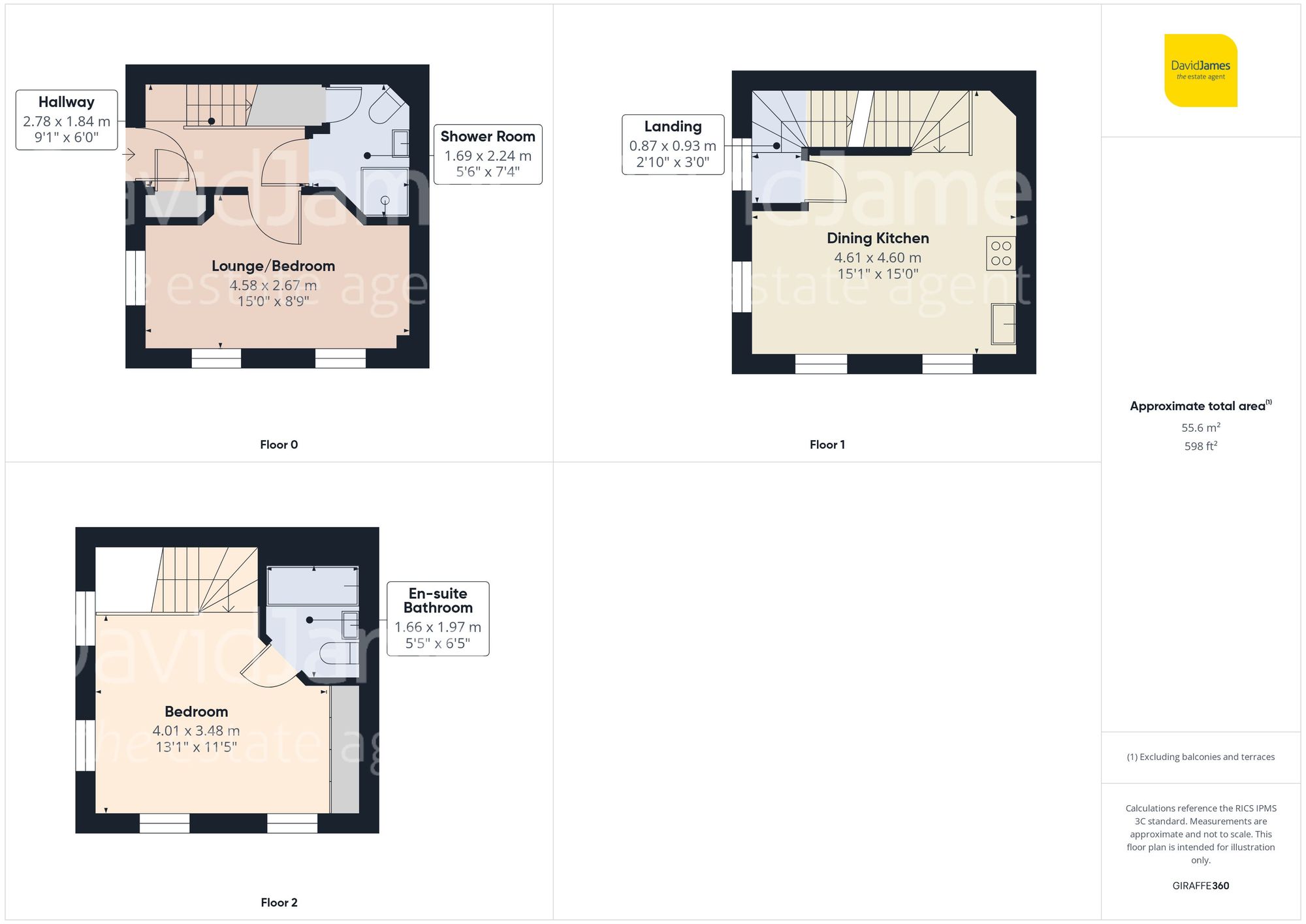
Modern and versatile, this three-storey end townhouse offers a living space suitable for various needs. The property boasts two bedrooms, with the ground floor featuring a bedroom which is currently being used as a lounge. As you enter, the tiled flooring in the entrance hall sets a contemporary tone, complemented by a convenient storage cupboard. The ground floor also houses a shower room/Wc with a white suite, tiled floor, and mains-fed shower for added convenience.

Moving up to the first floor, you'll find a bright dining kitchen/reception space, complete with an integrated oven, hob extractor, fridge and freezer for modern functionality. The top floor is dedicated to the principal bedroom, featuring built-in mirrored, sliding wardrobes and an en-suite bathroom/Wc with a mains-fed shower.

Additional comforts include gas central heating, UPVC double glazing, and an allocated parking space equipped with an EV charging point. Nestled away from the road, in an end of terraced plot, this property enjoys the tranquillity of surrounding communal gardens.


These particulars are produced in good faith and are set out as a general guide only. Please note that all measurements quoted are approximate and are the maximum measurements for the space. Floor plans are for illustrative purposes only. Services have not been tested.

David James Estate Agents have established professional relationships with third-party suppliers for the provision of services to Clients. As remuneration for this professional relationship, the agent receives referral commission from the third-party company. David James Estate Agents receives the following commission from each third party supplier on a per referral basis:

All Moves UK Ltd: 18% including VAT of the invoice total (£107 including VAT average)
MoveWithUs Limited: £188 including VAT (average)


Location


Floorplan

Floorplan for Hablethorpe Street, Bilborough, Nottingham Floorplan for Hablethorpe Street, Bilborough, Nottingham Floorplan for Hablethorpe Street, Bilborough, Nottingham Floorplan for Hablethorpe Street, Bilborough, Nottingham

EPC

EPC for Hablethorpe Street, Bilborough, Nottingham

Virtual Walkaround


Material Information

  • Tenure: Freehold
  • Council Tax Band: A
  • Arnold Branch

    100 Front Street, Arnold, Nottingham, NG5 7EJ

    Similar Properties

    Lime Tree Avenue, Nottingham
    For Sale

    Lime Tree Avenue, Nottingham

    3 Bed House For Sale
    Guide Price £310,000
    Grace Drive, Nottingham
    For Sale

    Grace Drive, Nottingham

    4 Bed House For Sale
    Guide Price £425,000
    Hanslope Crescent, Bilborough, Nottingham
    For Sale

    Hanslope Crescent, Bilborough, Nottingham

    3 Bed House For Sale
    Guide Price £210,000